极钢厨具的服务宗旨:
让每一个餐厅都能有合理的厨房布局,
让每一个餐厅经营者拥有适用的厨房,
购买性价比高、实用性强的厨房设备。
3D效果图
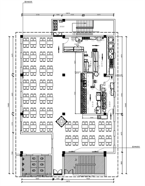
CAD平面图
行政机关厨房特性:
1、面积大、就餐人数多、功能齐全、分工较细、就餐时间固定且集中的企业食堂;
2、以大规模生产为主,多配备蒸饭柜、大锅灶、夹层锅、洗碗机、切菜机、等大型加工设备,满足大量出品的要求;
3、对于学校,卫生防疫要求非常严格,必须严格按照卫生规范来进行厨房设计。
针对行政机关食堂的特性,极钢厨具给您一个满意的专业解决方案!
江苏极钢厨具有限公司
服务热线:400-9900-260
座机:025-58702322
传真:025-85331092
E-mail:nj-sc@163.com
QQ:2851855611、2851855616
公司地址:江苏省南京市栖霞区和燕路381号
工厂地址:江苏省南京市江宁区汤山街道工业园经四路2号

异形厨具定制 | 厨房工程打造