极钢厨具的服务宗旨:
让每一个餐厅都能有合理的厨房布局,
让每一个餐厅经营者拥有适用的厨房,
购买性价比高、实用性强的厨房设备。
3D效果图
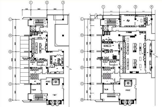
CAD效果图
星级酒店厨房特性:
1、酒店厨房功能间包括:加工厨房(粗、精加工,西饼房,鲜花房)、中餐厨房、宴会厨房、员工厨房、全日厨房、特色厨房(日式厨房,泰式厨房等)、行政酒廊、大堂吧等;
2、每个功能间分布在酒店的不同楼层,所以需要对这些功能间的流程动线综合考虑,使厨房达到最高运行效率;
3、了解酒店的品牌和定位,很多酒店会给商用厨具公司以前已建酒店设备品牌和类型参考,以保证品牌和功能的延续性,各餐厅的厨师长也会给出自己的意见。我们会结合酒店筹建所在地的地域美食需求,给业主餐厅出品的建议,以吸引食客;
4、针对宴会厅,会有比较充分的准备时间,所需要的人员与设备较少,可以考虑使用万能蒸烤箱等标准化生产设备。
针对星级酒店厨房的特性,极钢厨具给您一个满意的专业解决方案!
服务热线:400-9900-260
座机:025-58702322
传真:025-85331092
E-mail:nj-sc@163.com
QQ:2851855611、2851855616
公司地址:江苏省南京市栖霞区和燕路381号
工厂地址:江苏省南京市江宁区汤山街道工业园经四路2号

异形厨具定制 | 厨房工程打造